To Let commercial Property for Rent in Vanderbijlpark SE 6 Gauteng
To Let commercial Property for Rent in Vanderbijlpark SE 6 Gauteng
To Let commercial Property for Rent in Vanderbijlpark SE 6 Gauteng
To Let commercial Property for Rent in Vanderbijlpark SE 6 Gauteng
To Let commercial Property for Rent in Vanderbijlpark SE 6 Gauteng
R 373 month
video
video
video
video

Property features

  • Available  Available Now
  • Min Term  
  • R 373 month

Property Details

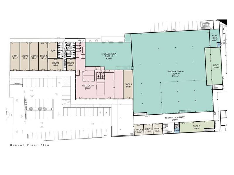
Prime Retail Space to Let – +/-34m² Shop in a Busy Shopping Centre
Looking for the perfect spot to open your shop? This +/- 34m² retail space is ideal for any business wanting maximum visibility and foot traffic!
Located in a newly renovated shopping centre, this shop is positioned at one of the best spots in the centre, ensuring excellent exposure. The centre is anchored by a well-established and well-known business, drawing a steady flow of customers every day.
This is the perfect opportunity to grow your business in a vibrant and busy commercial area.
Don’t miss out – enquire today to secure this prime retail space!

Availability: 2025-11-11

See more properties

Get in touch with Agent


For your convenience you will be automatically added to our area alerts.

Subscribe to regular
updates

Interested in properties in this area? Enter your email and get regular updates about properties.

Property Not Available? Report it

See more properties