To Let commercial Property for Rent in Samrand Business Park Gauteng
To Let commercial Property for Rent in Samrand Business Park Gauteng
To Let commercial Property for Rent in Samrand Business Park Gauteng
To Let commercial Property for Rent in Samrand Business Park Gauteng
To Let commercial Property for Rent in Samrand Business Park Gauteng
To Let commercial Property for Rent in Samrand Business Park Gauteng
R 100
video
video
video
video

Property features

  • Available  Available Now
  • Min Term  
  • R 100

Property Details

Position your business in the heart of a rapidly growing logistics hub with this exceptional tenant-driven development opportunity at 19 Lanner Falcon Road, Centralpoint.

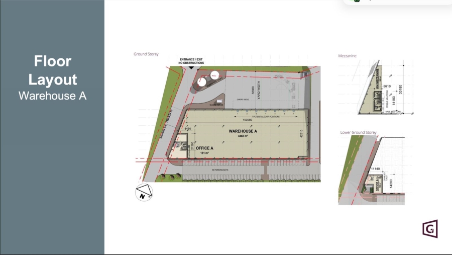
This premium industrial facility offers a total GLA of 5,652m², including approximately 4,468m² of warehouse space and 396m² of office area, designed to accommodate modern operational requirements. The warehouse is complemented by 7 roller shutter doors and a large yard, allowing for efficient superlink access, seamless loading, and optimal circulation.

Located just off the N1 highway, this property provides outstanding connectivity between Johannesburg and Pretoria, making it ideal for distribution, logistics, and warehousing operations.

Key Features:
• Tenant-driven development – customise to your operational needs
• ±5,652m² total space
• ±4,468m² warehouse | ±396m² office component
• 7 roller shutter doors for high-volume throughput
• Large yard suitable for superlink trucks
• Excellent highway exposure and accessibility

Location Advantages:
• Strategic position between Johannesburg and Pretoria
• ±10 minutes to Centurion Mall
• ±35 minutes to Johannesburg CBD
• Approximately 30km from OR Tambo International Airport
• Close to planned Gautrain station and major public transport routes

This is a rare opportunity to secure a bespoke industrial facility in a highly sought-after logistics corridor.

Contact us today to discuss your tailored development requirements.

Get in touch with Agent


For your convenience you will be automatically added to our area alerts.

Subscribe to regular
updates

Interested in properties in this area? Enter your email and get regular updates about properties.

Property Not Available? Report it