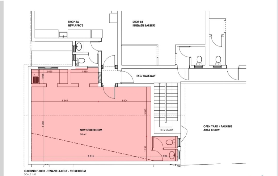
This unit will be available from 15 February 2026, white boxed. The unit is available in the newly renovated centre in Mackeurtan Avenue. It is on the backside of the property with parking area at the back. It is suited for an office/ ghost kitchen/ catering/ storage. 3 phase power can be made available.