Loading
0 Bedroom Property for Sale in Gonubie Eastern Cape
0 Bedroom Property for Sale in Gonubie Eastern Cape
0 Bedroom Property for Sale in Gonubie Eastern Cape
0 Bedroom Property for Sale in Gonubie Eastern Cape
0 Bedroom Property for Sale in Gonubie Eastern Cape
0 Bedroom Property for Sale in Gonubie Eastern Cape
0 Bedroom Property for Sale in Gonubie Eastern Cape
0 Bedroom Property for Sale in Gonubie Eastern Cape
0 Bedroom Property for Sale in Gonubie Eastern Cape
0 Bedroom Property for Sale in Gonubie Eastern Cape
0 Bedroom Property for Sale in Gonubie Eastern Cape
0 Bedroom Property for Sale in Gonubie Eastern Cape
0 Bedroom Property for Sale in Gonubie Eastern Cape
0 Bedroom Property for Sale in Gonubie Eastern Cape
0 Bedroom Property for Sale in Gonubie Eastern Cape
0 Bedroom Property for Sale in Gonubie Eastern Cape
0 Bedroom Property for Sale in Gonubie Eastern Cape
0 Bedroom Property for Sale in Gonubie Eastern Cape
R 16 000 000
Offer Pending
video
video
video
video

Property features

  • R 16 000 000
  • 0 Bedrooms
  • 0.0 Bathrooms
  • 0 Living Room/s
  • Garage for 0  car/s
  • Rates 
  • No Pets

Property Details

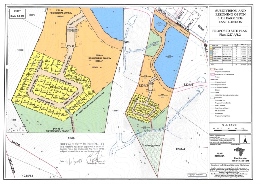
37 786 sqm of Prime flat land with road access from traffic circle Zoned Business 1
4 765 sqm of Prime land with easy access from traffic circle Zoned Business 1

13 588 sqm of Prime Residential Land Zoned Residential Zone IV
12 602 sqm of Prime Residential Land Zoned Residential Zone IV
16 133 sqm of Prime Residential Land Zoned Residential Zone IV

22 706 sqm of Agricultural Land Open space can be rezoned

1)Total area available 15.692 Hectares or 156 692 sqm
2) The front, road access portion, is zoned Business 1, measuring 63 565 sqm (Marked in light blue).
3) The mid section is zoned Residential IV and measures 70 300 sqm (Marked yellow and mushroom).
4) Balance in Green is open space which measures 22 700 sqm
5) Area is Sub Divided and Rezoned.
6) Within the urban edge and on the Gonubie Main Road.
7) Area is flat and has access to the traffic circle and is easy to develop into mixed Developments.
8) Business Zoned Portion with traffic circle and Main Road access measures 63 565 sqm.
9) Land is placed within the Spatial Development zone and Urban edge by BCM.
10) Land is relatively flat and with portions gently sloping to the North.

Sotheby's International Realty East London

Bond Calculator

Calculate your estimated monthly bond repayment for this property

% R

Property Investment Calculator

Buying to invest? Analyse this property's investment potential

Calculate cash flow projections, ROI, rental yields, and see when this property could start making you money. Get a detailed 20-year investment analysis with tax benefits.

Analyse Investment Returns

Get in touch with Agent


For your convenience you will be automatically added to our area alerts.

Subscribe to regular
updates

Interested in properties in this area? Enter your email and get regular updates about properties.

Property Not Available? Report it