Mount Pearl Estate – Paarl
467 Premium Housing
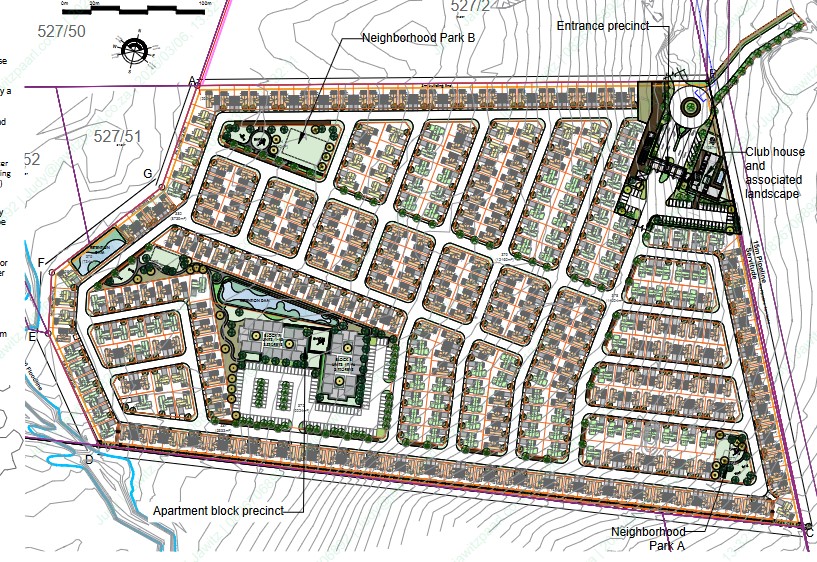
Nestled in the heart of the breathtaking Cape Winelands, Mount Pearl Estate offers an unparalleled lifestyle opportunity in one of South Africa's most sought-after regions. This exclusive security estate on Swawelstert Road in Paarl presents 467 premium housing opportunities, perfectly positioned amid rolling vineyards and majestic Mountains.
A Lifestyle of Serenity and Sophistication.
Imagine waking up to panoramic views of vineyards stretching across the valley, with the dramatic Paarl Mountains as your backdrop. Mount Pearl Estate combines modern living with natural beauty:
- Gated security estate for peace of mind and privacy
- Modern clubhouse for social gatherings, events, and relaxation
- Beautifully landscaped parks and scenic walkways for daily wellness and family enjoyment
- Surrounded by world-famous vineyards and the serene.
Mount Pearl Estate delivers the perfect blend of tranquility, convenience, and Winelands charm — all just minutes from Paarl's vibrant town center, top schools, restaurants, and wine estates.