Located in Montague Gardens, one of the most sought after Industrial precincts in the Western Cape, the premium grade 7 Chain Avenue development is a midi-unit industrial park comprising of two units totalling approximately 10600 square metres. Montague Gardens is an established industrial precinct with excellent access to all major arterial transport routes and the port of Cape Town.
The property will have the following features:
- Eves height of 6.4 metres.
- Minimum 32 metre yard depth to the warehouse face.
- High lift sectional overhead dock doors to the warehouse.
- Six On grade access doors.
- 5 metre deep canopy provided over all dock doors.
- 250 amp 3 phase power supply.
- LED high bay lighting to the warehouse.
- Excellent natural light to the vertical surfaces of the warehouse with polycarbonate transluscent sheeting.
- Full sprinkler system compliant to ASIB 12th edition which is connected to backup pumps and tanks.
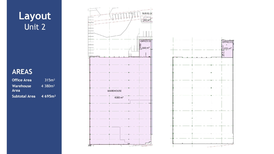
- Duplex office component of 315 square metres.
- 24 hour precinct security with CCTV cameras and access control.
- Sustainable building practices ensuring an efficient, cost effective development.
- Energy efficient air conditioning and lighting as well as structural compliance for future installation of solar panels.
- 2 day water harvesting.
For a more detailed information pack or in person presentation, please contact Annenberg Property Group.